← Volver a proyectos
San Isidro - Lima
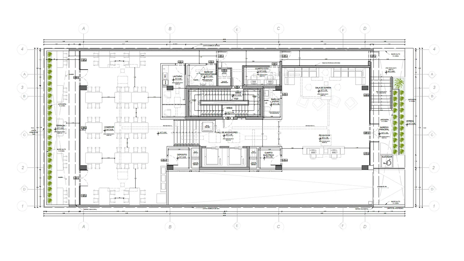
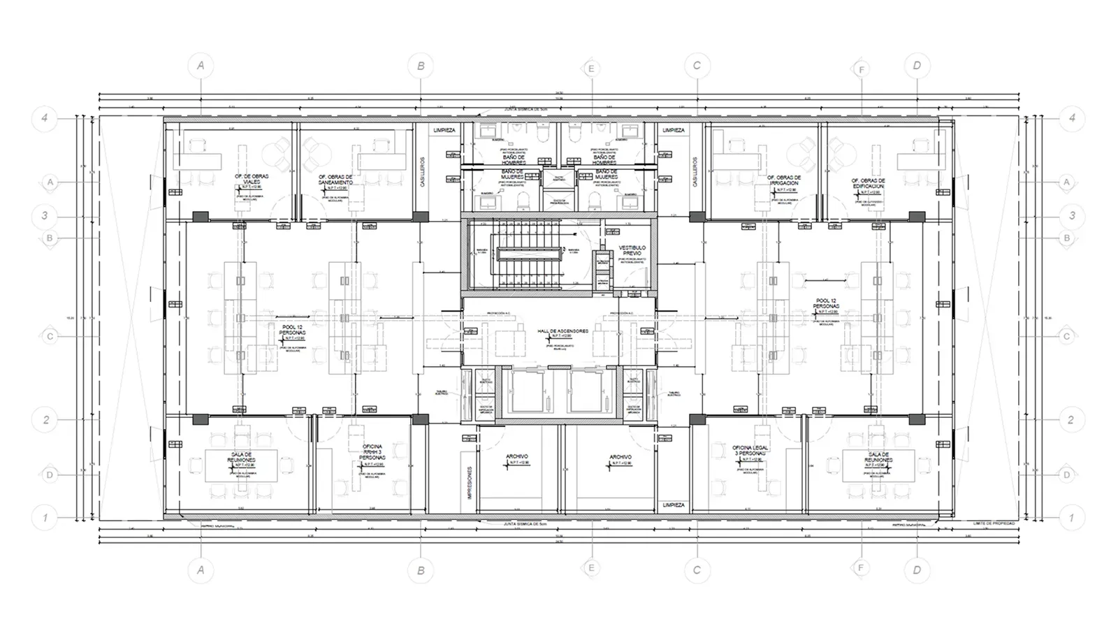
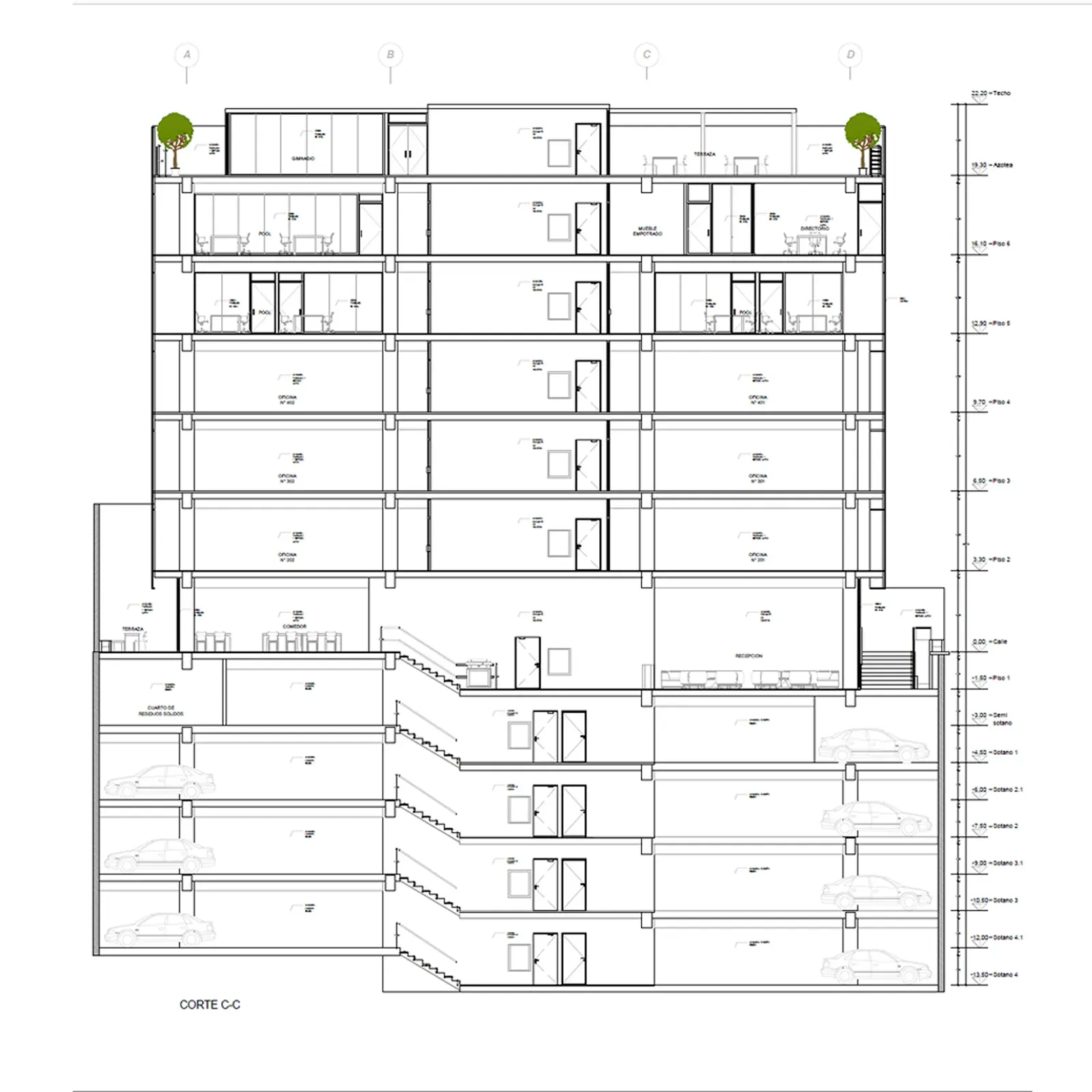
Edificio VICOP
Servicio
Diseño + Expediente
Cliente
VICOP SA
Área
500 m2
Fecha
DIC-25
Categoría
Edificios

En colaboración con BEE arq, participamos en el concurso del parque Bicentenario y Centro Cultural Rimac, el emplazamiento del proyecto, se encuentra en la margen sur del rio Rímac, exactamente frente al cerro San Cristobal, en donde actualmente existe una cancha de fútbol que se debe integrar con el proyecto. Nuestra propuesta rescata la esencia que compone el territorio de Perú, la tierra, la piedra, el metal y la madera constituyen el edificio y entorno, transformados en edificios y espacio público.

La gran plaza vincula la visual del peatón hacia el cerro San Cristóbal, funcionando así como un excelente mirador, que a su vez delimita la zona deportiva y el Centro Cultural. El edificio consta de 4 niveles, 2 por debajo de la plaza.